Beschreibung
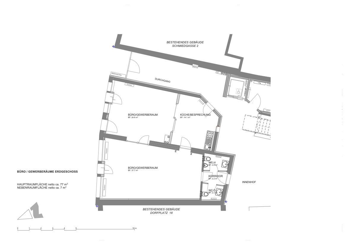
Ihr neuer Standort. Schwarzenburg, das Zentrum im Naturpark Gantrisch ist ein beliebter und wachsender Ort mit momentan rund 7000 Einwohnern und einem grossen Einzugsgebiet zwischen Bern, Freiburg und Thun. Die charmanten und modernen Räumlichkeiten im Dorfzentrum an bester Lage bieten viel Komfort für Ihr Gewerbe, Ihre Agentur oder Ihr Verkaufslokal. Ein Büro oder Verkaufsraum von 24.8 m2 oder 32.5 m2 mit Mitbenützung Studioküche und Toiletten bieten eine vielseitige Nutzung. Ein Innenhof und eine Gartenterrasse stehen zur Mitbenützung zur Verfügung. Öffentliche Parkplätze (blaue Zone) sind in kurzer Distanz vorhanden. Die grossen Schaufensterflächen sorgen für Ihre Sichtbarkeit und Präsenz.
Komplettfläche 83.90 m2 à CHF 1'850.-- pro Monat. Teilfläche Büro à 24.8 m2 CHF 800.-- und Büro à 32.5 m2 CHF 1050.-- mit gemeinsamer Nutzung Küche, Korridor und Toiletten. Die Mietpreise verstehen sich inklusive Nebenkosten.
Eigenschaften
Umgebung
- Stadtzentrum
- Geschäfte
- Einkaufsmöglichkeiten
- Bank
- Post
- Restaurant(s)
- Apotheke
- Bahnhof
- Busbahnhof
Aussenbereich
- Garten im Stockwerkeigentum
Innenbereich
- Behindertengerecht
Ausstattung
- Kochnische
- Glaskeramik
- Backofen
Boden
- Gussboden










