Beschreibung
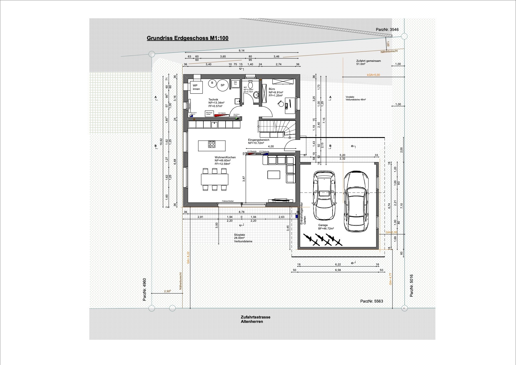
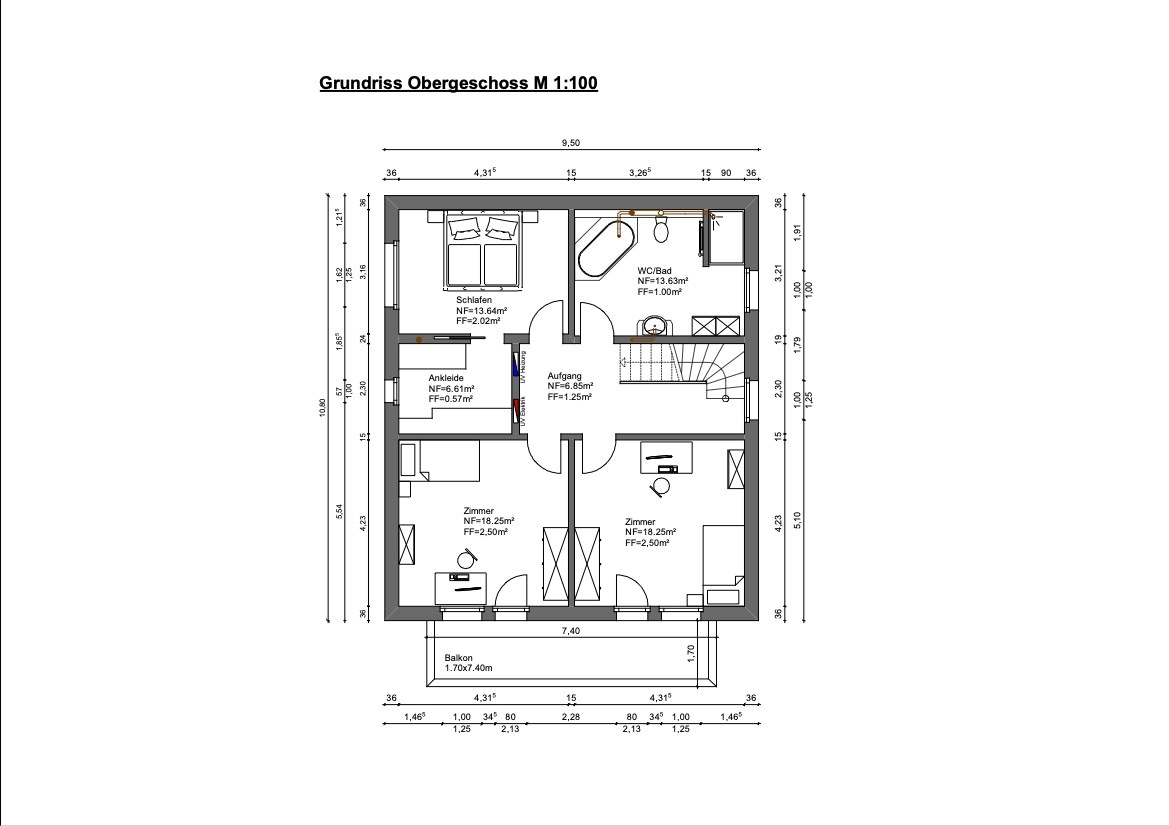
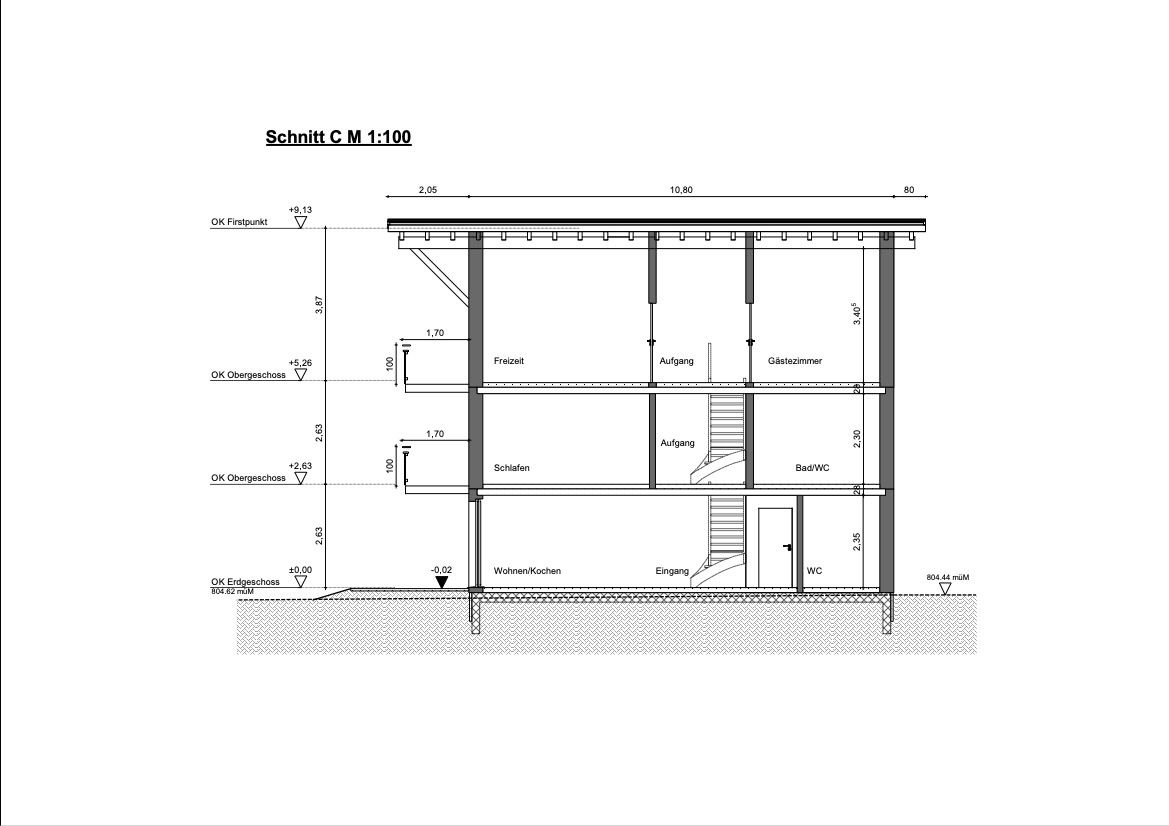
An ruhiger und sonniger Lage entsteht Neues. Auf dem 442 m2 grossen Grundstück wird ein praktisches Einfamilienhaus gebaut. Freie Sicht, südliche Ausrichtung mit einer Kubatur von 854m3 vom Haus und 227m3 der Garage steht das Haus auf einem Grundstück von rund 442m2. Die äussere Gestaltung obliegt dem Heimatschutz im Innenbereich können Wünsche der Käuferschaft mit Verrechnung der Minder- oder Mehrkosten umgesetzt werden. Für die Inneneinrichtung stehen grosszügige Budgets für die Küche (aus hausinterner Planung), die Armaturen und die Bodenbeläge zur Verfügung. Auf drei Wohngeschossen bietet das Haus viel Platz und angenehmen Komfort entsprechend den Grundrissplänen. Das Grundstück und das Haus wird mit einem Kauf- und Werkvertrag von der Gantrisch Planung GmbH verkauft und schlüsselfertig erstellt. Die Finanzierung erfolgt mittels einem Baukredit der Käuferschaft.
Eigenschaften
Umgebung
- Dorf
- Ländlich
- Berge
- Nebelfrei
- Wohnquartier
- Geschäfte
- Einkaufsmöglichkeiten
- Bank
- Post
- Restaurant(s)
- Apotheke
- Bahnhof
- Busbahnhof
- Bushaltestelle
- Sportzentrum
- Manege
- Skipiste
- Langlaufloipe
- Wanderwege
- Radweg
- Fussballplatz
- Eislaufbahn
- Museum
- Veranstaltungsort
- Religiöse Bauten
- Arzt
- Pflegeheim
Aussenbereich
- Terrasse(n)
- Parkplatz
- Garage












